このところ、日本からメルボルンで1ベッドルームの新築物件を探している方からのお問い合わせが増えています。価格的にも手が出しやすい1ベッドルームは人気が高いため、どのプロジェクトでも1ベッドルームから完売する傾向があり、現在市内およびその周辺の完成済物件では1ベッドルームは在庫が無い状態です。現在建設中の物件でも、1ベッドルームは在庫が少なくなっていますので、早めに抑えられることをお勧めします。
本年3月にご案内したサウスバンク(South Bank)に建設されているアリア・メルボルン(Aria Melbourne)でも、1ベッドルームの在庫が少なくなっています。お早めにご検討ください。
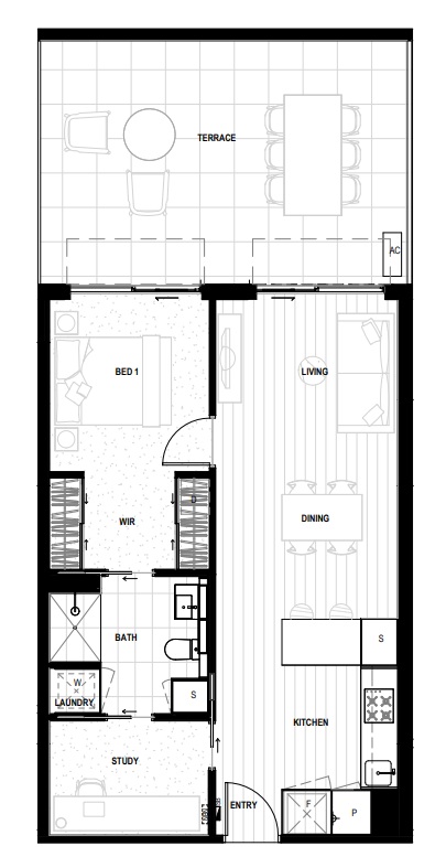
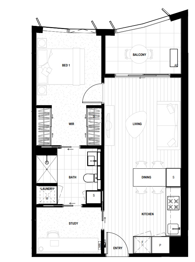
販売物件例
1 bed, 1 bath & study (3階) $855,000
1 bed, 1 bath & study 、駐車場1台 (7階) $950,000
1 bed, 1 bath & study 、駐車場1台 (13階) $1,010,000




詳細はmiho@djsmith.com.auまでお気軽にお問い合わせください。