弊社の賃貸管理マネージャー、Sinead OKeeffe(シャネード・オキーフ)をご紹介します。
2024年8月に入社した彼女はメキメキと実力をつけて、現在はチームの要となっています。誰に対しても親切で丁寧な彼女は、オーナーさん、テナントさん両方から信頼されています。
出身はノーザンテリトリーで、休みの日はジムに通ったり、ビーチに行ったりと活動的に過ごしているようです。

ケアンズの不動産、メルボルン新築不動産についてのご相談は、miho@djsmith.com.auまでお気軽に。
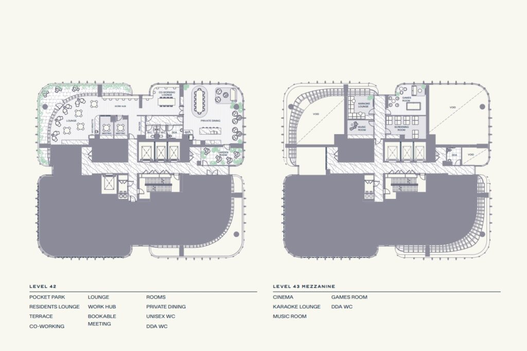
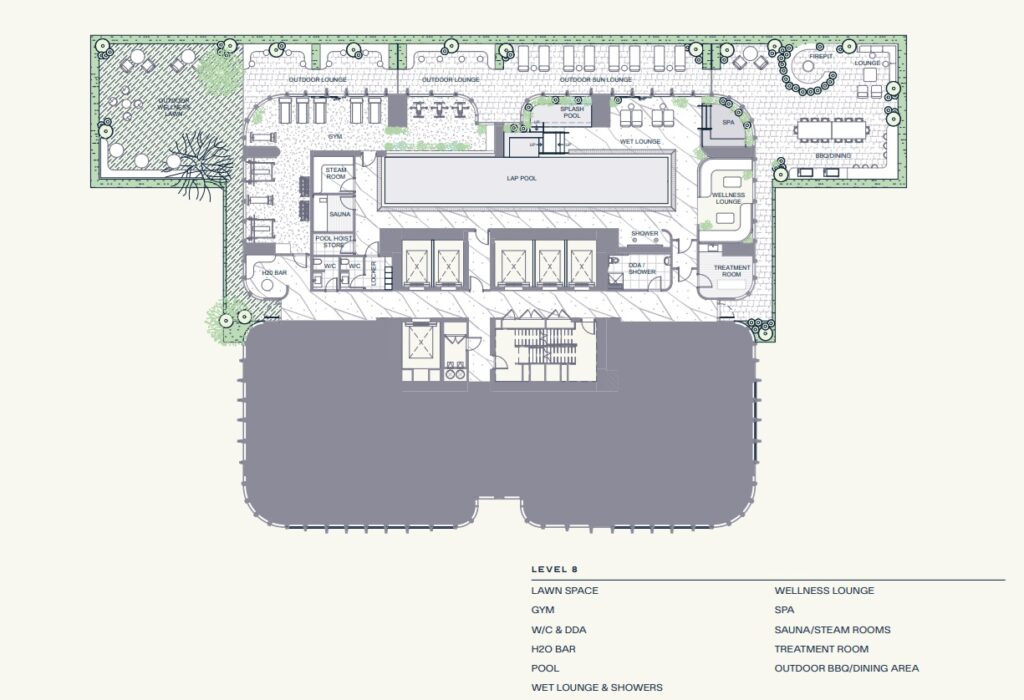
2029年初めに完成予定のタワーマンション・アトラス(Atlas)、1回目、2回目に引き続き、今回は建物内の共用施設についてご案内いたします。住民が自分の趣味の時間を館内で十分に楽しむ事が出来る設備が整っています。
◎71階・72階~スカイクラブ : 美しい眺望を備えたラウンジ、バー、キッチン




◎42階~ホライゾンコレクティブ : シアター、カラオケルーム、ミュージックルーム、ワークスペース

◎8階~ウエルネスクラブ : ラッププール、スパ、サウナ、スチームルーム、ジム、サンラウンジ等


詳細はmiho@djsmith.com.auまでお気軽にお問い合わせください。
病院、エスプラネード、市内中心、空港までもすぐ。便利なケアンズノース(Cairns North)に建つクイーンズランダー住宅の販売を開始しました。
高い天井と磨かれたチーク材の床、そして伝統的なVJ壁が織りなす温かみのある雰囲気。広々としたリビングから続く屋根付きデッキは、朝のコーヒーや友人とのBBQ、夜のリラックスタイムにぴったりです。1階にはセカンドバスルームとワークショップスペースがあり、多目的に利用可能。ボートやキャンピングカーのためのサイドアクセスも。

Address:382 McLeod Street, Cairns North
仕様:寝室3、浴室2、駐車2
敷地面積:459m2
価格:$765,000より交渉
お問い合わせはミホ(0488-005-958, miho@djsmithproperty.com.au) までお気軽に。
オーストラリアでは、オーストラリア国籍または永住権を持っていない方は、中古の住宅を購入することができませんが、中古の商業物件(オフィス、店舗、倉庫、工場など)の購入は可能です。
居住用物件と商業物件にはどのような違いを簡単にまとめてみました。

弊社では、日本にお住まいのお客様にも中古商業物件の購入から管理までサポートしています。商業物件の情報は Realcommercial.com.au でも検索可能です。
ケアンズの不動産、メルボルン新築不動産についてのご相談は、miho@djsmith.com.auまでお気軽に。
各自治体の図書館では、多くの参加型催しものが企画されていると以前ご紹介しました。これらの多くのイベントは無料です。私は、自分の住まいや勤務地周辺の図書館で、開催中のイベントをチェックし、興味と時間があれば参加をしています。

先日は、Gardening without harsh chemical(有害な化学薬品を使わないガーデニング)という講習がありました。平日の午前中という時間帯で、図書館内のスペースで行われ、参加者は約25人ほど。ガーデニングでよくある害虫の問題や、その原因、そして対処法などを、映写機で写真や文字を交えて分かりやすく説明してくれたので、とても理解しやすい講習でした。

講座タイトルにある「有害な化学薬品を使わない」という言葉のとおり、講師は「そもそも何をもって害虫と呼ぶのか」という視点を提示してくれました。ある植物には害を及ぼすものでも、別の植物や昆虫、鳥にとっては有益な存在であることもあるそうです。
そのため、問題の原因や生き物の習性を理解したうえで対策をとることの大切さを教えてくれました。たとえば、ポッサム(小さな有袋類動物)は高い場所や端を通って移動する習性があるため、守りたい植物は庭の中央や塀から離れた場所に植えるとよい、という具体的な例も紹介されました。後日、講習内容の要点をまとめた書類もEメールで受け取れるのも便利でとても参考になる講習でした。


メルボルンの新築不動産はこちらのページでご案内中。
メルボルンの物件はmiho@djsmith.com.auまでお気軽にお問合せください。
弊社の賃貸管理マネージャー、Yvette McCullough(イベット・マクロー)をご紹介します。
今年の7月に入社した彼女は、賃貸管理マネージャーとして20年の経験を持っています。豊富な知識と経験を活かし、すぐに戦力になった彼女は、常に穏やかで微笑みを絶やさず、オーナーさん、テナントさん両方から親しまれています。
出身はニューサウルズ州で、休みの日はキャンピングカーでキャンプに行くことが多いようです。

ケアンズの不動産、メルボルン新築不動産についてのご相談は、miho@djsmith.com.auまでお気軽に。
SQMリサーチによると、今年9月のケアンズの賃貸空室率はわずか0.8%。100件の賃貸物件のうち空いているのは0.8件だけという状況です。
人口増加が続くケアンズでは、賃貸物件の需要が供給を大きく上回り、家賃も上昇を続けています。ケアンズで賃貸収益物件の購入を検討されている方には追い風です。

DJ Smith Propertyでは、オーナー様の大切な物件を安心してお任せいただける賃貸管理サービスを提供しています。miho@djsmith.com.auまでお気軽にご相談ください!
ケアンズ市内から車で20分程度、レッドリンチ(Redlynch)の快適住宅で、賃貸入居者募集中です。寝室4、浴室2、駐車2にメディアルームとプールが備わったこの住宅は、ショッピングセンターまで車で数分と大変便利。築後4年と新しく、スタイリッシュできれいです。

Address:51 Laguna Avenue, Redlynch
仕様:4ベッドルーム、2バスルーム、2駐車スペース、メディアルーム、プール
家賃:1週間$890 (ボンド$3560)
詳しくはこちらのページをご覧ください。
2029年初めに完成予定のタワーマンション・アトラス(Atlas)、1回目に引き続き、今回はタイプ別のお部屋の間取り、価格について、および現在開発業者から提供されているインセンティブについてご案内させて頂きます。建物からのビューも階数に分けてご案内しています。物件の詳細は、前回のブログをご参照ください。
◎スタジオアパートメント例
2階、南向き、36.4m2 $505,000

◎1ベッドルーム+Study
10階、西向き、61.4m2 $876,400 → リベート$20,000適応で $856,400

◎2ベッドルーム+2バスルーム
5階、北東向き、78.8m2 $1,161,800 → リベート$50,000適応で $1,111,800

◎開発業者からのリベート
①1ベッドルーム + Study購入の方にはFIRB申請料($15,100)負担&$20,000リベート
②2ベッドルーム購入の方にはFIRB申請料($30,300費用)負担&$50,000リベート
◎投資利回りの予測
スタジオアパートメント 賃貸予測 週$600 年間経費 $5760 リターンNet5.0%
1べッドルーム+スタディ 賃貸予測 週$800 年間経費 $7300 リターンNet4.0%
◎70階からの眺望


詳細はmiho@djsmith.com.auまでお気軽にお問い合わせください。
エドモントン(Edmonton)の住宅、市場にあげてから5日間で成約しました。複数の買主からオファーが入り、売出価格を上回る高価格での成約となりました。
現在、ケアンズの住宅は売り手市場で、売却をお考えの方にはチャンスです。

お持ちの物件を高額で短期間に成約したいという方は、miho@djsmith.com.au 0488005958 までお気軽にご連絡ください。